Einreichplan: Gewerbliche Anlage VTT, Sierndorf - Baufirma Grassl

Zwischen Regelwerken, Arbeitsqualität und Effizienz

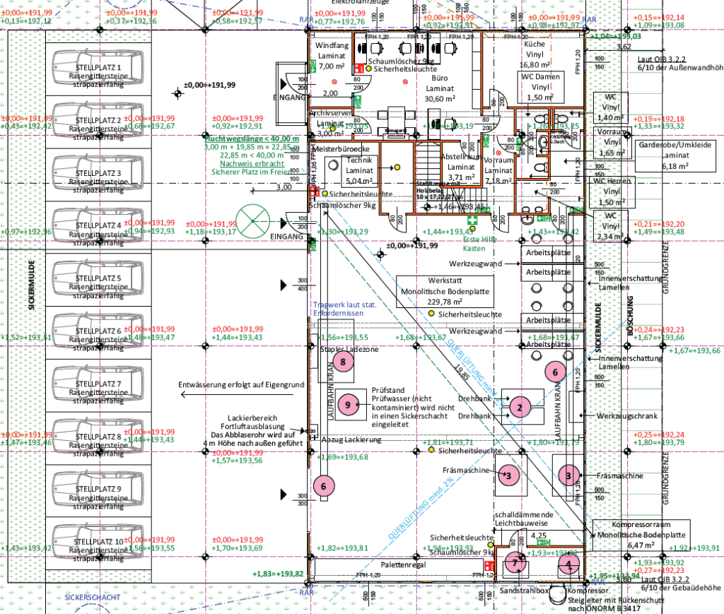
Die Planung von Gewerbeanlagen ist insofern eine besondere Herausforderung, da es gilt, drei wesentliche Säulen zum Gelingen des Projekts und zum ordentlichen und reibungslosen Betrieb zu beachten. Es gilt die Bauordnung und die damit zusammenhängenden OIB-Richtlinien einzuhalten. Hierbei geht es um Themen wie die Höhe des Gebäudes, die Einhaltung des Brandschutzes, der Standfestigkeit und vieles mehr. Gleichzeitig sind aber auch, da es sich hier um ein gewerbebehördliches Verfahren handelt, die Vorschriften seitens der Gewerbebehörde zu berücksichtigen. An dieser Stelle sind unter anderem die Qualitäten des Arbeitsplatzes zu nennen, also die Belüftung der Arbeitsbereiche, die Schaffung von Aufenthaltsräumen, die Durchsicht nach draußen etc. Schließlich muss der Betriebsablauf möglichst wirklichkeitsnah abgebildet werden, um den späteren Arbeitsablauf zu optimieren. So müssen zum Beispiel die Rangierflächen von Fahrzeugen berücksichtigt werden, sodass diese nicht mitten auf den Rampen zum Stehen kommen. Die frühe Planungsphase beeinflusst also bereits den Arbeitsablauf für die nächsten Jahrzehnte. Umso wichtiger ist es hier behutsam und vorausschauend zu agieren und der Planungsphase die entsprechende Länge zu geben, die sie benötigt, um ein erstklassiges, zukunftsorientiertes Betriebsobjekt verwirklichen zu können.

  • StandortSierndorf
  • LeistungEinreichplanung
  • Projektjahr2021

Zusammenfassung

Die Planung dieser Halle erforderte die Berücksichtigung von Bauvorschriften, Gewerbevorschriften und realistischen Betriebsabläufen, was eine komplexe Herausforderung darstellte.

Awesome Image
Awesome Image
WordPress Cookie Plugin von Real Cookie Banner