Bestandsplanung: Zinshaus, Wien, 3. Bezirk - Baufirma Grassl

Schaffung einer Grundlage

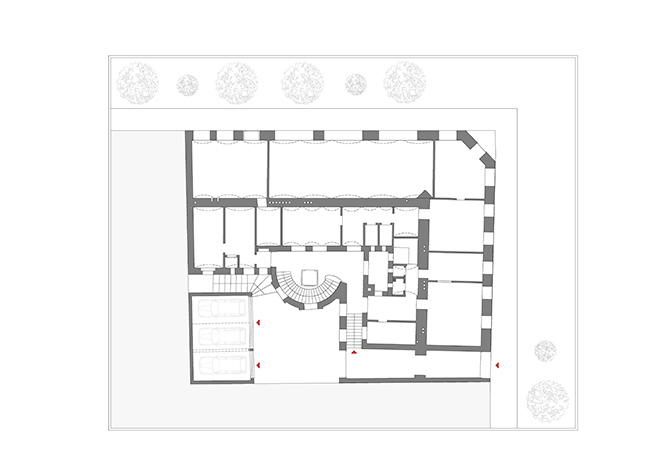
Für die Erstellung von Planungsunterlagen ist eine der wesentlichen Aufgaben das Ausmessen und die planliche Darstellung des Naturstandes vor Ort. Bei diesem großen Zinshaus im 3. Wiener Gemeindebezirk musste unser Team mehrfach anreisen, um die Maße stimmig auf Papier bzw. in CAD-Form bringen zu können. Dadurch konnten wir einen Bestandsplan erstellen, welcher nun das Fundament für zukünftige Planungen darstellt. Nach dem letzten Besichtigungstermin waren fast alle Mitarbeiter schon mal dort ausmessen gewesen. Wir witzelten, dass jedes Grassl Teammitglied einmal in dem Zinshaus im 3. Bezirk gewesen sein muss.

  • StandortWien, 3. Bezirk
  • LeistungAusmessen des Naturstandes, Bestandsplanung
  • Projektjahr2022

Zusammenfassung

Dieses Projekt erforderte zahlreiche Besichtigungen und einen erheblichen kollektiven Aufwand.

Awesome Image
Awesome Image
WordPress Cookie Plugin von Real Cookie Banner